SCHUMAN - Appartement T1 bis :
***CET APPARTEMENT VOUS INTÉRESSE ? RDV sur notre site guerlesquin-et-associes.com afin de DEPOSER VOTRE CANDIDATURE EN LIGNE !***
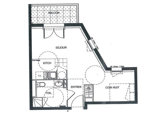
Au 3e étage avec ascenseur, T1 bis comprenant entrée avec placard, séjour sur balcon (côté jardin), cuisine ouverte (plaques électriques et frigo), coin nuit, salle d'eau avec wc.
Parking privatif.
Chauffage individuel électrique.
Logement soumis à une assurance Garantie Loyer Impayé (conditions de ressources à valider auprès du Cabinet).
DPE - Montant estimé des dépenses annuelles d'énergie pour un usage standard : environ 560EUR-790EUR (estimation réalisée à partir des prix énergétiques de référence de l'année 2021, 2022 et 2023).
Les informations sur les risques auxquels ce bien est exposé sont disponibles sur le site Géorisques : www.georisques.gouv.fr
Appartement disponible fin décembre 2025 à 114 Bd Robert Schuman Nantes.
Réference à nous communiquer : 1104137
Informations complémentaires
| Référence : 110 41 37 |
| Pièce(s) : 1 |
| Surface habitable * : 34 m² |
| Chambre(s) : 1 |
| Exposition : Est |
| Année de construction : 2011 |
| Parking : 1 |
| Ascenseur : Oui |
| Interphone : Oui |
| Nb. de niveaux : 5 |
| Etage : 3 |
| Ville : Nantes |
| Prix : 535 € |
| Charges : 23 € |
| Honoraires TTC : 450 € |
| Dépôt de garantie : 513 € |
Informations non contractuelles ne pouvant engager le cabinet.
CC : Charges comprises.
HAI : Honoraires d’agence inclus.
* Surface approximative.
Dépenses énergétiques
Être alerté par mail
des nouvelles annonces
La boîte à outils
du locataire






