Nantes Chantrerie - Route de Gachet - Au coeur d'un parc paysager, en bordure d'un espace boisé classé.
***CET APPARTEMENT VOUS INTÉRESSE ? RDV sur notre site guerlesquin-et-associes.com afin de DEPOSER VOTRE CANDIDATURE EN LIGNE !***
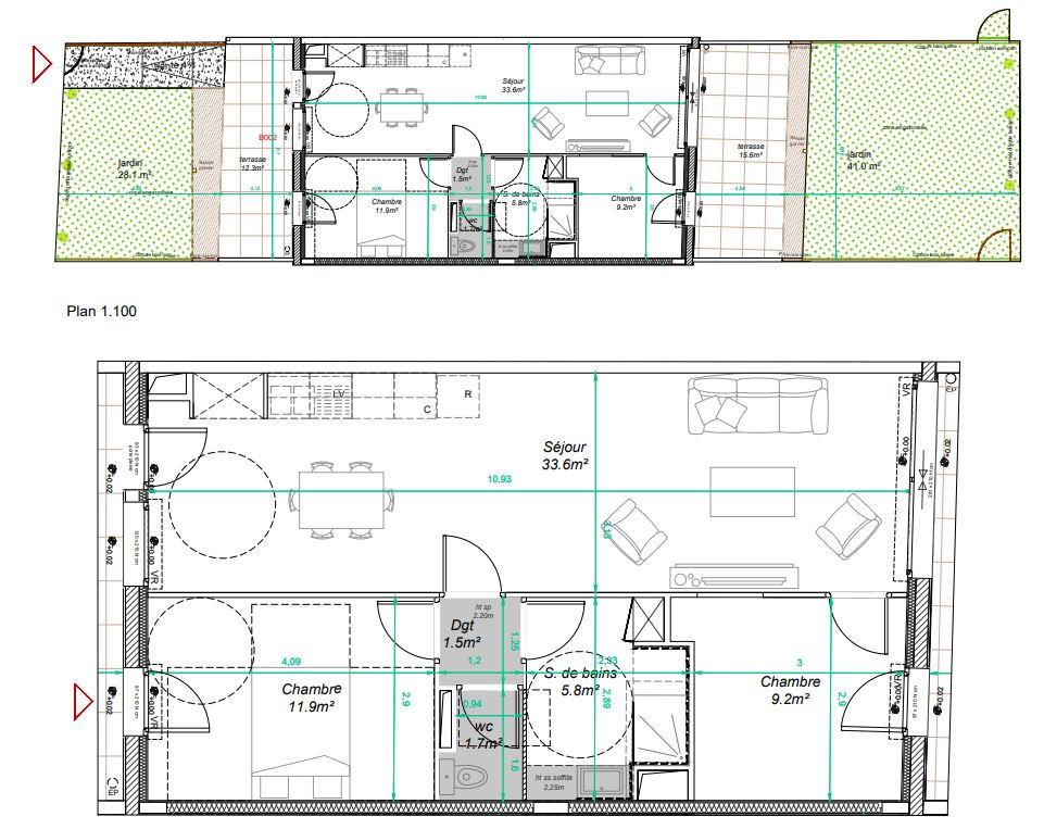
Dans une résidence récente, accessible directement par le jardin, un appartement T3 en rez-de-jardin de 63m2 comprenant deux jardins et deux terrasses (à l'avant et à l'arrière du logement), un séjour avec coin cuisine aménagé, deux chambres, une salle d'eau (douche) et un WC séparé. Un emplacement de stationnement au sous-sol de la résidence.
Eau froide, chauffage et eau chaude collectifs (compris dans les charges).
Logement sous dispositif fiscal PINEL et soumis à une assurance Garantie Loyer Impayé (conditions et plafonds de ressources à valider auprès du Cabinet).
Montant estimé des dépenses annuelles d'énergie pour un usage standard : entre 380EUR et 560EUR (estimation réalisée à partir des prix énergétiques de référence de l'année 2021).
Résidence située dans un environnement naturel (proximité immédiate de l'Erdre et du parc de la Chantrerie) et économique dynamique (grandes écoles et entreprises du secteur de l'innovation et des hautes technologies).
Logement disponible à compter du 5 janvier 2026 et situé 92 Route de Gachet à Nantes.
Référence à nous communiquer : L220312
Informations complémentaires
| Référence : L220312 |
| Pièce(s) : 3 |
| Surface habitable * : 63 m² |
| Chambre(s) : 2 |
| Salle(s) de bain : 1 |
| Exposition : Est |
| Année de construction : 2022 |
| Parking : 1 |
| Ville : Nantes |
| Prix : 856 € |
| Charges : 100 € |
| Honoraires TTC : 756 € |
| Dépôt de garantie : 756 € |
Informations non contractuelles ne pouvant engager le cabinet.
CC : Charges comprises.
HAI : Honoraires d’agence inclus.
* Surface approximative.
Dépenses énergétiques
Être alerté par mail
des nouvelles annonces
La boîte à outils
du locataire








