Nantes - Boulevard Dalby - Dans une résidence récente,
***CET APPARTEMENT VOUS INTÉRESSE ? RDV sur notre site guerlesquin-et-associes.com afin de DEPOSER VOTRE CANDIDATURE EN LIGNE !***
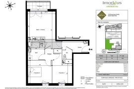
Appartement de type 3 au 1er étage (avec ascenseur) comprenant une entrée, un dégagement avec placard desservant un salon donnant sur le balcon, une cuisine ouverte aménagée et équipée, deux chambres dont une avec placard, une salle d'eau (douche) et des WC séparés.
En annexe une place de parking en extérieur et sécurisée.
Chauffage individuel au gaz.
Logement sous dispositif fiscal PINEL et soumis à une assurance Garantie Loyer Impayé (conditions et plafonds de ressources à valider auprès du Cabinet).
DPE : montant estimé des dépenses annuelles d'énergie entre 560 et 810 EUR (année de référence :2023)
Les informations sur les risques auxquels ce bien est exposé sont disponibles sur le site Géorisques : www.georisques.gouv.fr
Appartement disponible de suite et situé 130 boulevard Dalby à Nantes.
Réference à nous communiquer : L210302
Informations complémentaires
| Référence : L210302 |
| Pièce(s) : 3 |
| Surface habitable * : 56 m² |
| Chambre(s) : 2 |
| Année de construction : 2021 |
| Parking : 1 |
| Ascenseur : Oui |
| Interphone : Oui |
| Balcon : Oui |
| Nb. de niveaux : 5 |
| Etage : 1 |
| Ville : Nantes |
| Prix : 736 € |
| Charges : 84 € |
| Honoraires TTC : 653 € |
| Dépôt de garantie : 653 € |
Informations non contractuelles ne pouvant engager le cabinet.
CC : Charges comprises.
HAI : Honoraires d’agence inclus.
* Surface approximative.
Dépenses énergétiques
Être alerté par mail
des nouvelles annonces
La boîte à outils
du locataire







