1. Accueil
  2. Location
  3. Appartement
  4. Nantes
  5. Appartement 1 pièce 34 m² (réf. 110 41 37)

SCHUMAN - Appartement T1 bis :

***CET APPARTEMENT VOUS INTÉRESSE ? RDV sur notre site guerlesquin-et-associes.com afin de DEPOSER VOTRE CANDIDATURE EN LIGNE !***

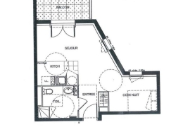
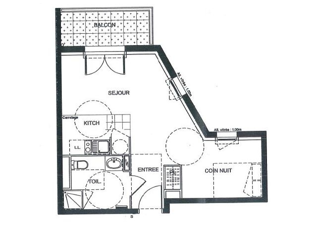
Au 3e étage avec ascenseur, T1 bis comprenant entrée avec placard, séjour sur balcon (côté jardin), cuisine ouverte (plaques électriques et frigo), coin nuit, salle d'eau avec wc.

Parking privatif.

Chauffage individuel électrique.

Logement soumis à une assurance Garantie Loyer Impayé (conditions de ressources à valider auprès du Cabinet).

DPE - Montant estimé des dépenses annuelles d'énergie pour un usage standard : environ 560EUR-790EUR (estimation réalisée à partir des prix énergétiques de référence de l'année 2021, 2022 et 2023).

Les informations sur les risques auxquels ce bien est exposé sont disponibles sur le site Géorisques : www.georisques.gouv.fr

Appartement disponible fin décembre 2025 à 114 Bd Robert Schuman Nantes.

Réference à nous communiquer : 1104137

Informations complémentaires

Référence : 110 41 37
Pièce(s) : 1
Surface habitable * : 34 m²
Chambre(s) : 1
Exposition : Est
Année de construction : 2011
Parking : 1
Ascenseur : Oui
Interphone : Oui
Nb. de niveaux : 5
Etage : 3
Ville : Nantes
Prix : 535 €
Charges : 23 €
Honoraires TTC : 450 €
Dépôt de garantie : 513 €

Informations non contractuelles ne pouvant engager le cabinet.
CC : Charges comprises.
HAI : Honoraires d’agence inclus.
* Surface approximative.

Dépenses énergétiques

Diagnostic de Performance énergétique de niveau D Emissions de Gaz à Effet de Serre de niveau A

Être alerté par mail
des nouvelles annonces

Créer une alerte mail

La boîte à outils
du locataire

Découvrir

Biens similaires

Partager cette annonce

* champs obligatoires

Demande d'informations

Remplissez le formulaire ci-dessous. Vous serez recontacté dans les plus brefs délais.

* champs obligatoires

Mes informations

Mon message

J’accepte que GUERLESQUIN & Associés collecte mes données personnelles afin de pouvoir me contacter et m’adresser les informations nécessaires au traitement de ma demande, j’ai la possibilité de retirer à tout moment mon consentement en envoyant un email à contact@gg-immo.fr. Je peux également consulter la charte de protection des données personnelles.